This journey was never going to be plain sailing, especially given the world events happening during this time!
We were very pleased to get our build permit in December, and here we are in March 2022 and still not even broken ground! Lots of reasons really, but to try and sum up, we received the contract and proposal to build, but were disappointed with some aspects. To be fair to our architect the pandemic has pushed materials higher and effected supply chains. Its a global problem, but does seem to be coming back to some form of normality.
However, it meant that some of the design elements had been removed and excluded, but could be added at an extra cost. We had been pretty specific with our budget and were given assurances it was all possible before submitting all the plans. We knew we would probably have to do some value engineering to squeeze the design to fit the budget, but did not suspect that meant major design elements which would not deliver our brief. We suspect this sounds familiar to many who are attempting a new build project at this time?
This meant we had some serious head scratching to do…
We did look at some other properties, and were actually doing that throughout the whole period to see what we could get for an existing property for our budget. In the same district, but further away from our friends, we could have got a place that had all the things we wanted, and still had some funds to alter or make additions. But it would never have met our overall desires, such as living close to our friends, a single story level, or that we would be in a quiet and tranquil location.
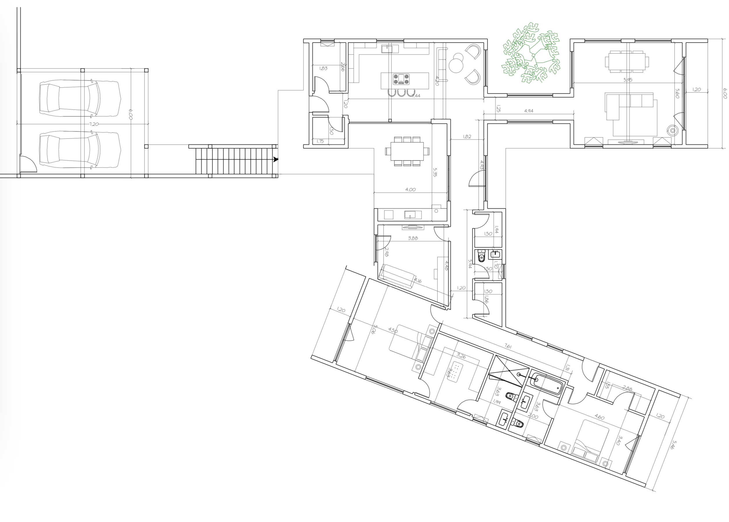
So…back to reality. It was time to look at what we could do without (for now). We loved the original design and loved our architects vision and whole build principles, we also loved the location and so it was time to make some compromises.
There were certain aspects we were not prepared to drop however. 1. We had to have a warm house during the cold months, and the most effective and efficient way to achieve that was to use underfloor heating. 2. We wanted to make the best use of solar power (why wouldn’t you in Portugal?). Therefore, it made sense to look at a multi-functional heat pump to run the heating and hot water, and have it run by solar most of the time and the grid when the solar can’t cope. We originally looked at having a battery backup for when the grid goes down too, but thats another ”Fit for but not with” option, and we will add at a later date. 3. We needed a cover for the car, so looked at downsizing the huge garage, to a more sensible car port.
The pool is also going to take a back seat and the huge area of decking around the pool is just pushing the material costs too high, so we will live with as is for the time being. We also had a large laundry in the design, that we actually discussed several times as being nice to have but did we really need it? The space next to the kitchen would be large enough for us so by loosing that space saves quite a bit.
The architect then worked the design and calculations, and managed to maximize his lumber making best use of the longest lengths, and by reducing the halls and some rooms by a few centimeters, it all becomes easier from a build perspective and also reduces the material cost.
So, after the re-jigged proposal, we end up with a house that meets our needs and still achieves our wishes. There are things we can add later when the world starts to get its arse in gear!
So to conclude this quick update…
We have agreed to an updated design and agreed to go ahead with an increased budget, which doesn’t leave much to refurnish, as we sold everything when we moved! But we both agreed once we have the house and we are in we can then work on the other things in slow time…



During this time, We were also keen to explore more of the country and perhaps a bit wider afield. We have been living with our besties all through the pandemic and lockdowns and were getting concerned that they needed some space without us around, time with their family and friends, and some time alone too.
But now we had an even tighter budget to think about so how to go about this?. On the plus side we have a lot of time on our hands and heard about a house and pet sitting service which seemed a great way of meeting those objectives, and at a reasonable cost. We are looking to have pets when we finally move into our home, so we thought we could both learn from, and help others out by looking after their house and pets. This also allows us to travel a bit and see more of the world and not be under our besties feet all the time.
Well…just before we agreed the final design for the house, we had our first house-sit accepted, near Lagos in the Algarve, so the adventure continues…
See you in the next one.